中古戸建
高瀬川沿戸建
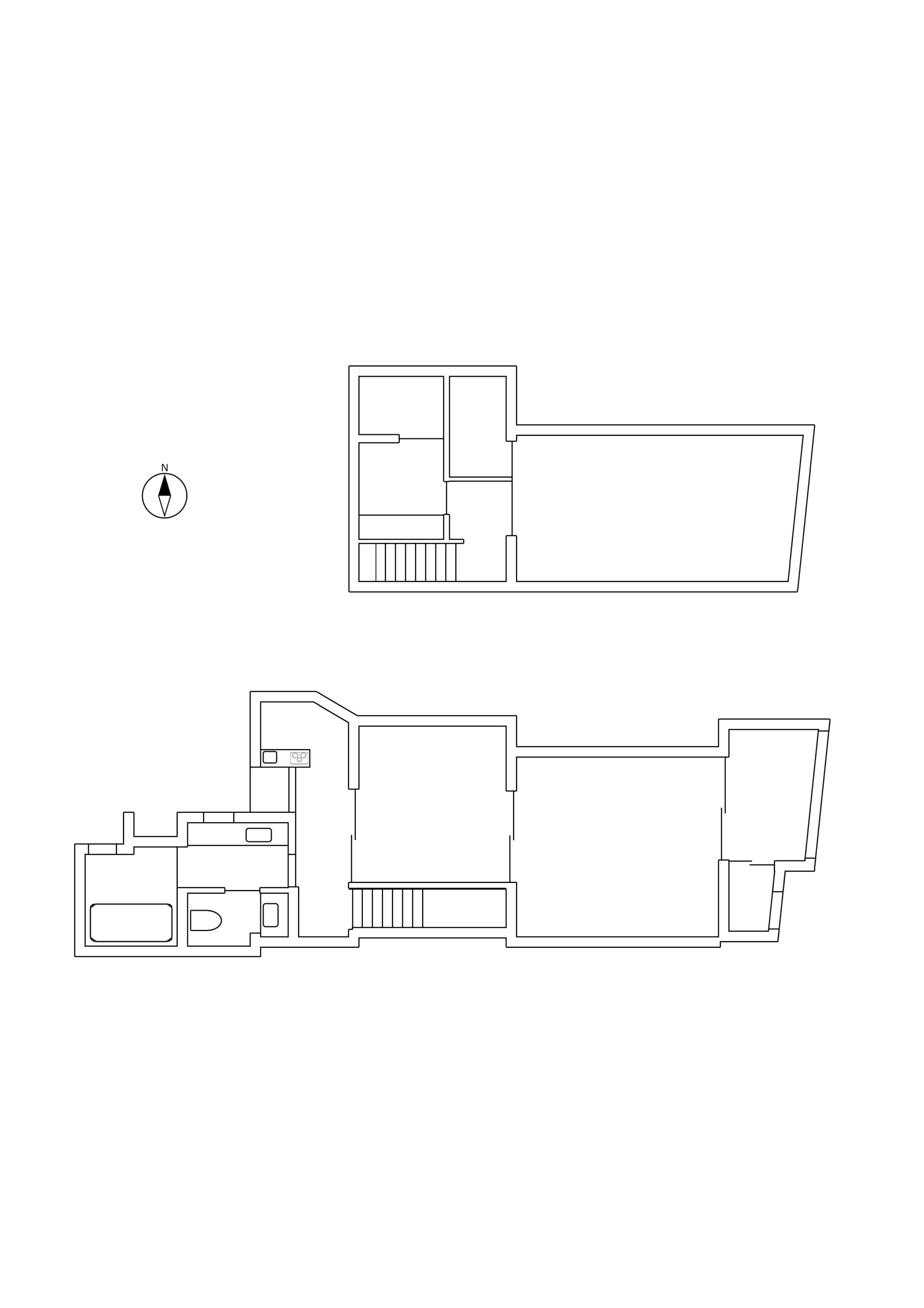
55.86㎡(16.9坪)
-万円
- 所在地
- 京都市下京区西橋詰町771-6
- 交通
- 京阪本線「清水五条」駅 徒歩約3分
- 間取り
- 55.86㎡(16.9坪)
- 土地権利
- 所有権
- 土地面積
- 55.86㎡(16.9坪)
- 建物面積
- 69.08㎡
- 種 類
- 店舗
- 都市計画
- 市街化区域
- 用途地域
- 商業地域
- 設備
- 公営上下水道、都市ガス
- 建ぺい率
- 80%
- 容積率
- 400%
- 備考
- 再建築不可
03-6665-9520
中古戸建
詳しくは
03-6665-9520